

Kapaklı giydirme cephe sistemleri ; ayarı bitmiş olan alüminyum alt karkasların üzerine yerleştirilen camın evvela baskı profillerinin uygun yuvalarına vidalanması ile sıkıştırılıp sızdırmazlığın sağlanmasını müteakip istenilen kesitteki kapak profilinin yuvasına oturtularak montaj işleminin tamamlanması şeklindedir.
KAPAKLI GİYDİRME CEPHELER
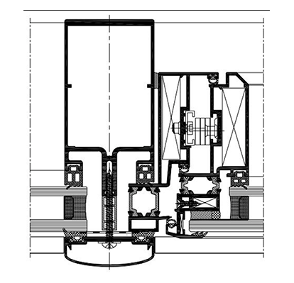
Kapaklı Giydirme Cephe Sistemi alüminyüm çelik ve camın bir araya getirilerek oluşturulan, teknolojiyi ve ekonomik çözümü müşteriye sunan yatay ve dikey çizgilerin hakim olduğu çağdaş mimarinin vazgeçilmeyen bir unsurudur. Giydirme cephe projesinde belirtilen açıklıklarda ve her katın döşeme betonuna alüminyum veya galvanizli çelikten üretilmiş ankarajlara bağlanan taşıyıcı düşey profiller ile bunlar arasına istenilen yüksekliklerde cam takabilmek ve bunları taşımak için düşey taşıyıcı profillere özel bağlantı elemanları ile bağlanan yatay kayıt profillerinden oluşan, ısıcam cam sonrası Kapaklı giydirme Cephe sistemi içerisinde sadece yatayda veya düşeyde kapak profili kullanılarak farklı etkiler elde etmek mümkündür. Kapaklı giydirme cephe sistemleri ; Görsel isteklere göre farklı kesit ve formda kapak profili kullanılabilir. Bu sistem içerisinde de kanat uygulaması yapılması mümkündür. Farklı derinliklere sahip griyaj profilleri sayesinde geniş açıklık uygulamalarına olanak sağlayan sistem, yapı dış görünümü itibariyle, sadece yatay veya sadece düşey kapaklardan çizgilerden oluşmaktadır. Ayrıca, düz, açılı, badem ve küt badem kapak seçenekleriyle yapıya görsel zenginlik katmaktadır.Kapaklı giydirme cepheler, dünyada ilk kullanılan sistem olduğundan kullanımı çok yaygındır. Ülkemizde de oldukça yaygın olarak kullanılan bu sistem üretim ve montaj kolaylığı sayesinde düşük maliyetlere yapılabilmektedir. Kapaklı giydirme cephe sistemlerini oluşturan parçaları , Sistemi taşıyacak alüminyum taşıyıcı profiller, kaplama için kullanılacak camlar ve camların birleşme noktalarına yerleştirilecek alüminyum kapaklar. Kapaklı giydirme cephe de mekanik olarak bağlanan profillerin cam ilişkisindeki ısı, ses ve su izolasyonu silikon cephede olduğu gibi EPDM fitiller ile sağlanmaktadır. Bu sistemde kanat açma ihtiyacı; kanat adaptör profili adı verdiğimiz profillerle karşılanmaktadır.
